︎
無名
Study
Project
Exhibition
Info
Mark
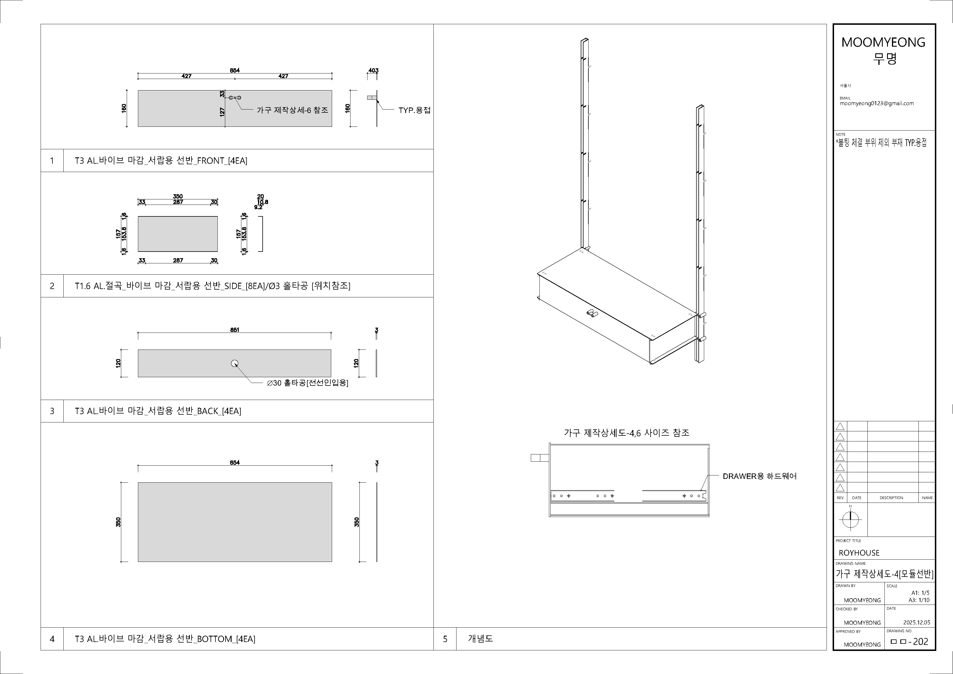
ㅁㅁ -202
stainless plate / aluminium plate